Este viernes 31 a las 18 horas se realiza en Toay la inauguración del «Hogar para Personas con Discapacidad», una obra llevada adelante por ADIS (Asociación de Integración Social), con el aporte de la empresa «Casino Club SA».
Durante el acontecimiento se hará entrega además de los premios al Compromiso 2005.
«Esto no es un centro médico ni nada parecido» dijo Graciela Etcheberrigaray, presidenta de ADIS, explicando que la obra que se inaugura es un Hogar para asistir a aquellas personas discapacitadas que fehacientemente no tengan familiares que puedan ayudarlos o bien una familia que pueda albergarlos. Indicó que las instalaciones (de 20 a 24 camas) están preparadas para mayores de 16 años aunque comenzarán con los Talleres de día, que es para mucha más gente, hasta tanto obtengan la habilitación -en trámite- para poder albergar a personas con discapacidad.
El anuncio oficial fue realizado el 5 de julio de 2004 en Santa Rosa, por parte de Graciela Etcheberrigaray, presidenta de ADIS y el Ing. Ricardo Benedicto, vicepresidente ejecutivo de Casino Club S.A. (foto); acompañados por Miguel Tavella, presidente del Instituto de Seguridad Social; Alfredo Schanton, Intendente de Toay; y el Arquitecto Lucas Swinnen encargado del proyecto. Hoy, casi dos años después, la obra es inaugurada. (archivo REGION®) |
|
Jorge Podestá, vicepresidente de ADIS, señaló que hasta el momento, toda la inversión de la obra fue solventada por «Casino Club SA» y que para el funcionamiento a pleno del Hogar tienen calculado que tendrán un costo mensual de 35 mil pesos, por lo que están en contacto con importantes empresas a las que les han solicitado su aporte, «que lo podrán descargar impositivamente» explicó «ya que tenemos todos nuestros papeles en regla». Hasta el momento, según señaló Podestá, hay una inversión realizada de un millón y medio de pesos, todo aporte privado.

El Hogar de ADIS sobre calle Roque Saenz Peña 258 en Toay. Ahora el anhelo es que el colectivo urbano modifique su recorrido para pasar por allí. |
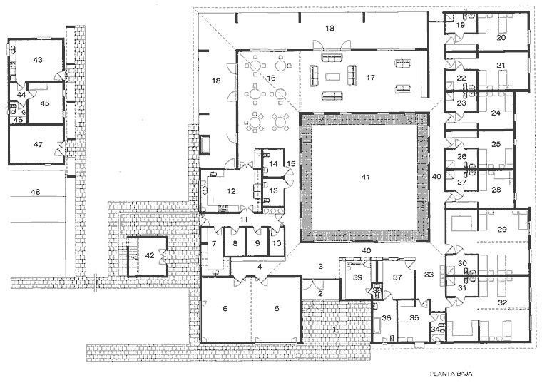
La Asociación de Integración Social (ADIS) tiempo atrás terminó la etapa constructiva de su Hogar ubicado en Toay, en un terreno donado a la institución por la Municipalidad, cuyo proyecto de diseño pertenece al Arquitecto Lucas Swinnen, y este viernes 31 a las 18 horas quedará finalmente inaugurado. El proyecto de más de 800 m2 edificados, permitirá albergar de 20 a 24 personas con el desarrollo de Talleres de día que trabajarán (con muchas más personas) en la reinserción social de hombres y mujeres con capacidades diferentes, entre otros objetivos.
Según lo programado, se contará con los siguientes Talleres: Creatividad, Arte, Expresión Corporal y Educación Física, Informática, Integración con la Comunidad, también Talleres Terapéuticos y Literarios.
|
|
Sala de estar y una de las habitaciones,
con todo lo necesario para sus ocupantes. |
Aspectos del proyecto
El proyecto contempló la construcción de un hogar para personas con discapacidad.
El carácter edilicio buscado responde a la vivienda familiar tipo afín de mantener la continuidad de una continencia familiar. El número de internos ascenderá a veinte pudiendo el edificio además contener actividades de otros usuarios externos en aulas talleres y espacios de estar.
Características funcionales
El programa desarrollado en el edificio es el siguiente:
1.- Las habitaciones: Se dispusieron tres tipos de habitaciones de acuerdo al número de usuarios de cada una: dos habitaciones para tres personas; tres habitaciones para dos personas; dos habitaciones para cuatro personas. Estas últimas pueden modificarse y convertirse fácilmente en cuatro habitaciones de dos usuarios cada una. Todos los cuartos tienen baños privados con equipamiento y superficies adaptados a personas con discapacidad. Cada habitación posee una zona diferenciada con placares de guardado
2.- Las zona de estar y comedor: Claramente diferenciadas y en relación directa con una galería exterior que servirá naturalmente de expansión y reposo protegida.
3.- La zona de servicio: Una cocina de amplias dimensiones totalmente equipada para un hogar de estas características con sus respectivos locales anexos: Depósitos de alimentos / despensa; Cámara fría; Depósito de maestranza / herramientas y útiles de limpieza; Lavadero y depósito de ropa sucia; Parrilla anexa a la cocina permitiendo el uso como comedor de la galería exterior

El patio interior otorga protección y reparo, con mucha luminosidad. |
4.- La zona de recreación, estudio y trabajo: Representada por dos talleres de cómodas proporciones que podrán eventualmente unificarse para dar lugar a un espacio más amplio que permitirá su uso como salón polivalente para fiestas, actos , etc.
5- La zona administrativa y de asistencia al usuario: La secretaría, recepción y espacio administrativo anexo a la entrada del edificio; la enfermería que contará con el equipamiento adecuado para la asistencia permanente de los usuarios; una habitación con baño privado para un encargado/a (guardia) anexa a la habitaciones
6- Los sanitarios: Se destacan dos grupos de sanitarios : los que se encuentran en relación directa con las habitaciones y los de uso general. Ambos contendrán evidentemente sanitarios adaptados a personas discapacitadas.
7- Las zonas de circulación: De cómodas dimensiones y siempre en relación con espacios exteriores que aportan luminosidad y agradable vista evitando así el oscuro y largo corredor de tantos centros asistenciales
8- El patio: El patio abierto en el centro del conjunto dará calidez y gran luminosidad a la casa incorporando a la misma un espacio verde.
Características proyectuales y técnicas
El conjunto posee una arquitectura sencilla , de volúmenes bajos y agradables. En relación con su entorno se abre hacia la buena orientación y hacia los médanos vecinos. En oposición y como complemento el patio interior otorga protección y reparo. Constructivamente el edificio responderá a esta concepción y utilizará recursos sencillos y de bajo mantenimiento. Muros cerámicos portantes revocados y pintados, carpinterías de aluminio anodizado natural y cubiertas metálicas, pisos y revestimientos cerámicos etc.
Por su funcionamiento, su estética y sus materiales este hogar será por sobre todo eso: una vivienda, una CASA.
Colaboración: Arq. Lucas Swinnen
Ley 24901: Atención integral para las personas con discapacidad por parte de las Obras Sociales, Prepagas y el Estado
Las personas con discapacidad tienen derecho a una cobertura integral (100%) por parte de su Obra Social, Propaga o el Estado de todos y cada uno de sus gastos de salud, educación y traslados.
Esta circunstancia es ignorada en un 99% de los casos por lo que las personas con discapacidad gastan grandes sumas de dinero en salud, educación y/o traslados cuando podrían obtener su cobertura si no hubiera falta de información. Es por este motivo que hemos decidido realizar el presente informe.
1.- Cobertura por parte de Obras Sociales.
Las obras sociales están obligadas a otorgar cobertura total de las prestaciones básicas enunciadas en la ley 24901.
Esta cobertura abarca
* prestaciones preventivas (que incluyen todo de tipo de tratamientos, controles, exámenes necesarios para prevenir o detectar tempranamente cualquier tipo de discapacidad, desde el momento de la concepción).
*apoyo psicológico adecuado al grupo familiar.
* prestaciones de rehabilitación (cobertura integral de los recursos humanos, metodologías y técnicas necesarias, y por el tiempo y las etapas que cada caso requiera).
*prestaciones terapéuticas educativas (cobertura integral de técnicas y metodologías de ámbito terapéutico-pedagógico y recreativo).
prestaciones educativas (comprende escolaridad en todos sus tipos, capacitación laboral, talleres de formación laboral y otros).
* prestaciones asistenciales (requerimientos básicos esenciales de la persona con discapacidad habitat, alimentación, atención especializada- a los que se accede de acuerdo a la situación socio-familiar del demandante.
* transporte especial, con el auxilio de terceros cuando fuere necesario.
*provisión de órtesis, prótesis, ayudas técnicas y otros aparatos ortopédicos.
* atención odontológica integral.
* cobertura de un anestesista cuando fuere necesario.
* atención psiquiátrica.
* medicamentos y psicofármacos, incluso que no se produzcan en el país.
* otros.
Incluso corresponde la cobertura total de prestaciones a cargo de profesionales especialistas que no pertenezcan al cuerpo de la obra social y deban intervenir imprescindiblemente. También los estudios de diagnóstico y de control que no esté n contemplados dentro los servicios que brinda la obra social.
Es decir, todo tipo de prestación que necesite una persona con discapacidad debe ser obligatoriamente cubierta por la obra social.
Lo único que se necesita es acreditar la discapacidad con el certificado previsto en la ley 22431 y tener un justificado médico para la prestación. La cobertura debe ser total, cualquier tipo de limitación temporal o en cuanto al monto, es contraria al espíritu de la ley (opinión compartida por la Superintendencia del Seguro de Salud).
La Res. 400 de la A.P.E. resolución conocida por quienes hayan realizado trámites ante obras sociales para obtener cobertura de prestaciones- no es aplicable a la relación entre la persona con discapacidad y la obra social, sino aplicable solamente a la relación entre la obra social y el Estado, por lo tanto, ni sus requerimientos ni sus limitaciones pueden ser exigidos.
Cobertura por parte de empresas de medicina prepaga
La cobertura que obligatoriamente deben cumplir las empresas de medicina prepaga, es la misma que deben cumplir las obras sociales, mencionadas en el punto anterior.
La ley obliga a las empresas de medicina propaga a cumplir con las mismas prestaciones obligatorias para las obras sociales mediante la Ley 24.754, y el Programa Médico Obligatoria del corriente año.
No se puede imponer ningún tipo de limitación.
Cobertura por parte del Estado
La misma obligación compete al Estado, siendo incluso el principal obligado en lo que respecta a la cobertura de estas prestaciones.
Cobertura por parte de obras sociales provinciales de la ciudad de buenos aires, y otras no incluidas en la sistema nacional del seguro de salud
Las obras sociales provinciales para estar obligadas directamente por la ley 24901 a la cobertura integral, deben haberse adherido al Sistema Nacional del Seguro de Salud.
Las que no están adheridas a éste, igualmente se encuentran obligadas a otorgar cobertura total e integral debido a fundamentales derechos constitucionales, que se verían violados: derecho a la igualdad, a la salud, a la integridad física y psíquica, a la educación, a la vida, a la dignidad.
Discapacidades que tienen derecho a la cobertura total
Todas las personas con discapacidad tienen derecho a la cobertura integral de sus prestaciones básicas, la ley no requiere ningún grado de discapacidad ni discrimina en tipos de discapacidades.
Forma de efectívizar este derecho.
Este derecho tiene plena operatividad. Las personas con discapacidad tienen derecho a una cobertura integral, es decir, ningún tipo. de prestación necesaria para ella escapa de la cobertura.
Lamentablemente, pese a la existencia de un sistema perfecto, que otorga repetimos-cobertura total, los encargados de ella no lo cumplen, tratan de evadir su obligación como ocurre siempre en todos los campos.
Es por ello que la vía más expeditiva es la justicia, a través de una Acción de Amparo que posibilita la obtención en el plazo de 15 ó 20 días de la cobertura total de las prestaciones, a través de una medida cautelar.
CONCLUSIONES
Los abusos por parte de las Obras Sociales y Empresas de Medicina Prepaga, su negativa a cubrir éstas u otras prestaciones o su actitud de no cubrirlas en un 100 % son uno de los casos más frocuontes en la discapacidad. En estos tiempos se especula con la falta de información. No permita que a Ud. también le ocurra, las leyes establecen la protección integral y Ud. puede hacerlas cumplir.
Dr. Diego AGÜERO
http://www.discapacitados.org.ar/notas/nota42.html
|